Complejo «Toscana» En Venta – Pasaje Las Salinas, Provincia de San Luis.
$75.000
PRECIO EN U$D
CONSULTAR FINANCIACIÓN
PRECIO EN U$D
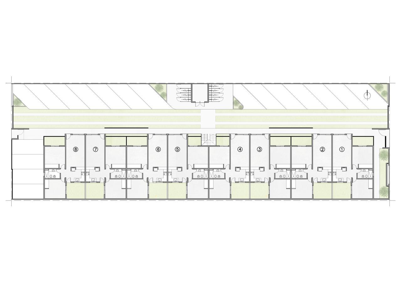
El presente proyecto se desarrolla en un terreno de 1.300 m2 aproximadamente, en el
cual se construye 18 unidades de departamentos.
El terreno, cuenta con servicios de agua potable, energía eléctrica, cloacas, servicios
telefónicos, transporte, etc. A su vez, el proyecto plantea una superficie a construir de 520 m2
en planta baja y 640 m2 en primer nivel, lo que hace un total de 1.120 m2 de superficie
cubierta.
Cada uno de ellos contempla estar comedor, cocina semi-integrada con barra, 2
dormitorios y 1 baño completo, cubriendo 65m2 de construcción total cada departamento. A su
vez, cada uno de ellos cuenta cochera semicubierta, y además patio interno en planta baja y
balcones para los del primer nivel.
El sistema constructivo adoptado para esta obra es el tradicional, con estructura de
hormigón armado, mampostería de ladrillo cerámico y cubiertas de viguetas pretensadas,
debiéndose adquirir mano de obra calificada acorde a cada una de las tareas y trabajos a
realizarse durante el proceso constructivo.
En lo referido a terminaciones, las mismas son de primera calidad, de las cuales podemos
destacar, Carpinterías de aluminio Línea Modena, y DVH (Doble Vidriado Hermético) en sus
aberturas principales, Porcelanatos 60x60, Pisos flotantes en habitaciones, materiales
eléctricos de primera marca, cielorrasos de yeso aplicado y placas de yeso tipo Durlock,
revoques interiores de yeso aplicado.
En cuanto al equipamiento de muebles y artefactos, los departamentos cuentan con
Muebles de cocina y Placares completos con interior, de primera calidad. Horno, anafe y
campana extractora de primera marca. Griferías de baños y cocinas completas, de vanguardia y
primera marca. Sanitarios Alberti Linea Lyon. Puertas marca Oblak interiores marco chapa
(línea Nativa) y exteriores de chapa (línea Primma Plus con barral acero inoxidable). Portero en
cada departamento con cerradura eléctrica. Portones automatizados con control remoto para
las entradas vehiculares. Con respecto a la seguridad el complejo contara con Cámaras de
Vigilancia.
En el exterior los espacios comunes son tratados con iluminación y decoración de
vanguardia con artefactos de primera calidad y tecnología led.
Fecha de inauguración del complejo: 30 de Septiembre de 2022.
Información adicional
| Cant. Baños | 1 Baño |
|---|---|
| Cant. Dormitorios | 2 Dormitorios |
| Condición | |
| Tipo de Propiedad |









Valoraciones
No hay valoraciones aún.